Makléř: Macháček Michal
Telefon: 603 744 ...
E-mail: info@re ...
Zobrazit celý kontaktTelefon: 603 744 244
E-mail: info@remach.cz
Nemovitost nabízí
Remach
Palackého nám. 175, 68601 Uherské Hradiště
Zobrazit kontakt na RK
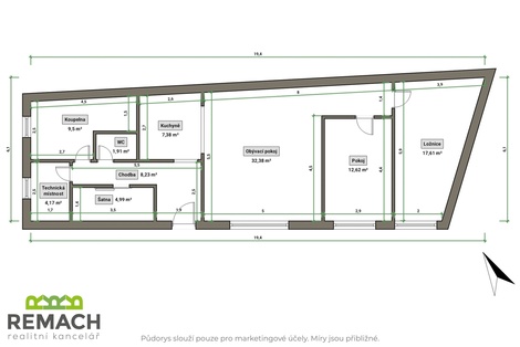
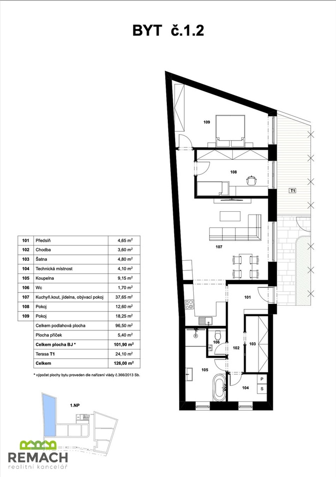
Byt v přízemí o dispozici 3+kk s bezbariérovým vstupem nabízí plochu 101,9 m2. Ve vstupní chodbě máte prostor pro vestavnou skříň a botník. Z chodby je vstup do šatny, koupelny a technické místnosti, dále do obývacího pokoje s kuchyňskou linkou a jídelním stolem. Tento prostor má výměru přes 37 m2. Z obývacího pokoje i obou ložnic máte vstup na terasu o velikosti 24,1 m2. Koupelna je vybavena vanou i sprchovým koutem, toaleta s umyvadlem je samostatná a návštěvy vám tak nebudou vcházet do vaší osobní koupelny. Najděte domov v klidném centru Starého Města u Uherského Hradiště. Novostavba bezbariérového čtyřpodlažního bytového domu s výtahem nabízí jen 17 bytů. U stavby je kladen důraz na pohodlí a komfort a to podpoří dostatek parkovacích míst a energetická úspora. Vytápění a ohřev vody je zajištěno čerpadlem, celkem čtyři hlubinné vrty a tepelné čerpadlo s účinností A+++ (země - voda), v koupelnách elektrické otopné žebříky. V celém bytě podlahové topení. FOTOVOLTAICKÉ PANELY vám zajistí energetickou soběstačnost, navíc, každý byt je vybavený REKUPERAČNÍ JEDNOTKOU (atrea) pro výměnu vzduchu, dále KLIMATIZACÍ a kompletní klid v domě zajistí venkovní fasáda s dominantními stínícími prvky a trojskla. Bydlete ve městě, ale přírodu mějte na dosah. Bytový dům je 1 km vzdálený od centra Uherského Hradiště a pouhých 400 m od nákupní zóny. Můžete se tedy spolehnout na veškerou občanskou vybavenost v docházkové vzdálenosti. Odpočinek a klid najdete na březích řeky Moravy či Baťova kanálu v těsné blízkosti. Na výlety vás bude lákat nedaleké poutní místo Velehrad. B1.2
Prodej novostaveb bytů v developerském projektu 3+kk, 105 m2 + garáž, Comenius Towers - Uherský Brod, okres Uherské Hradiště
Představujeme vám moderní rezidenci na sídlišti Olšava v Uherském Brodě, která nabízí úchvatné panoramatické výhledy, jaké jinde nenajdete. S důrazem…
Prodej, byt 3+kk, novostavba Uh. Ostroh
Nabízíme prodej bytu o velikosti 3+kk, který je situovaný ve 3. podlaží novostavby bytového domu. Tato novostavba byla zkolaudována na konci roku…