Makléř: Souček Martin
Telefon: 773 022 ...
E-mail: info@ex ...
Zobrazit celý kontaktTelefon: 773 022 220
E-mail: info@explicitreality.cz
Nemovitost nabízí
EXPLICIT REALITY, s.r.o.
Chudenická 1059/30, 102 00 Praha 10
Zobrazit kontakt na RK
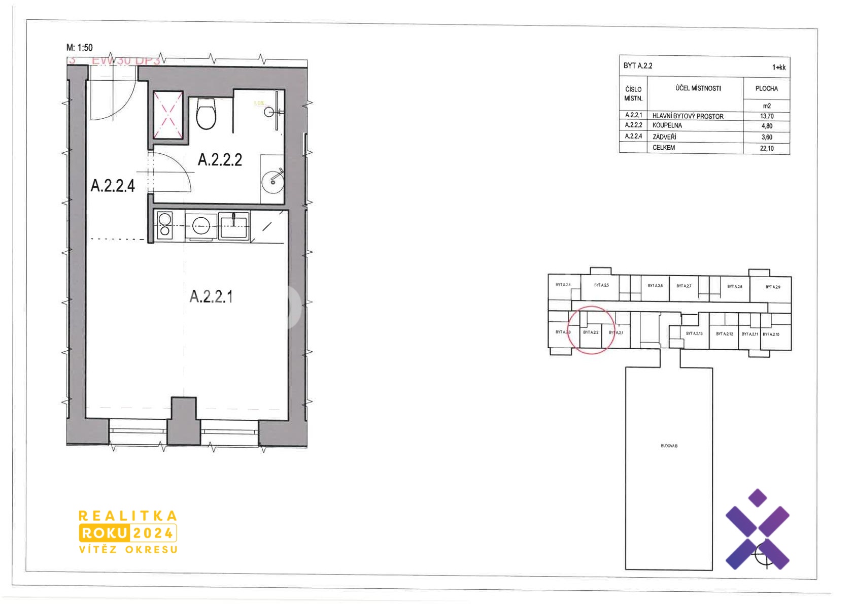
Nabízím k pronájmu krásný byt o dispozici 1+kk s podlahovou plochou 26 m2, který se nachází v atraktivní lokalitě v centru Zlína na ulici Lorencova v komplexu Park Tower. Byt je situován v klidném prostředí s výbornou občanskou vybaveností a díky umístění v přízemí nabízí snadný přístup bez bariér. Součástí je také sklepní kóje, která poskytuje úložný prostor pro Vaše věci. Po vstupu do bytu se ocitnete v předsíni, odkud se dostanete do hlavní obytné místnosti propojené s moderní kuchyní. Ta je plně vybavena elektrickou troubou, indukční varnou deskou a digestoří. Koupelna se sprchovým koutem je spojena s toaletou a nechybí zde ani pračka. Díky poloze v samotném centru města máte na dosah veškerou občanskou vybavenost - školy, školky, MHD, restaurace, obchody, lékaře i široké možnosti kulturního a sportovního vyžití. Měsíční nájemné činí 8 900 Kč a zálohy na energie jsou ve výši 3 300 Kč. Kauce je stanovena ve výši jednoho nájmu. Byt je k nastěhování ihned. Pokud vás nabídka zaujala, rád se s vámi setkám na osobní prohlídce. Ing. Martin Souček, Váš realitní makléř Explicit Reality.
Pronájem, Byty 1+kk, 25 m - Zlín - Prštné
Krásný, nový a moderní byt v atraktivní lokalitě ve Zlíně, k dispozici od 15. 1. 2026 Nabízíme Vám pronájem nového apartmánu ve Zlíně Prštném, na ul…
Pronájem, Byt 1+kk, Zlín
Dumrealit.cz Vám zprostředkuje plně zařízený byt 1+kk v uplném centru Zlína na ulici Sadová u parku Komenského. Užitková plocha bytu činní 37 m2 s…